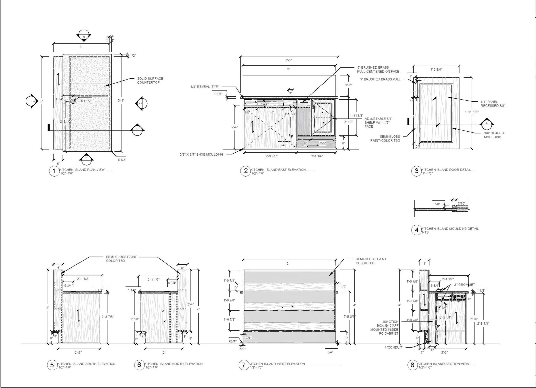
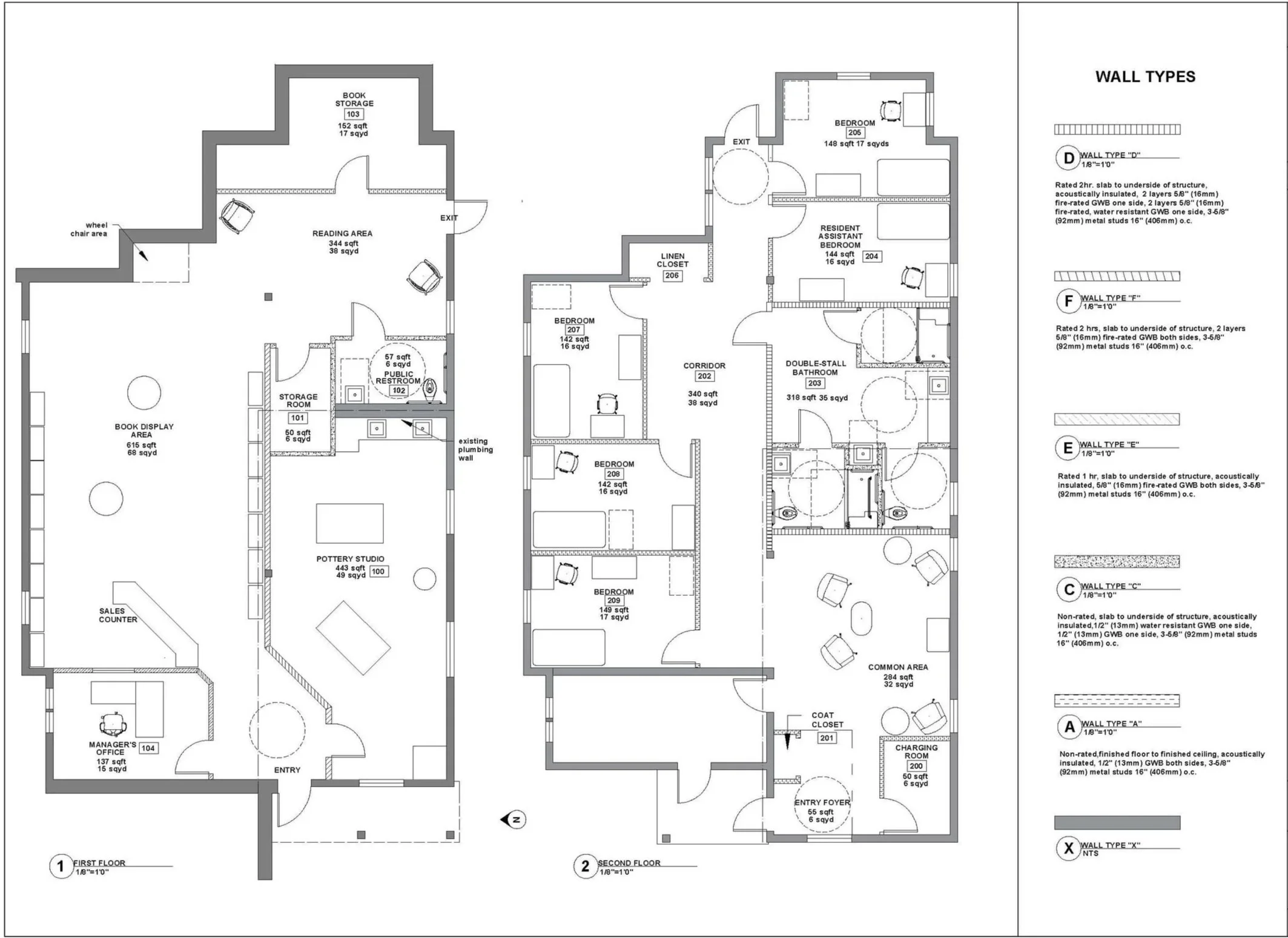
ADA & Life Safety Drawings & Documents Millwork Flooring Reference Plan Meditation Space Site Analysis Bubble & Blocking Diagram